Apartament z 3 sypialniami w Los Cristianos Beach
Playa De Los Cristianos - REF. 1406

86 m2

5 m2

3

1

1
sprzedaż: 419 900 €
Opis

Los Cristianos to bez wątpienia najpopularniejsza i najbardziej pożądana okolica na wyspie Teneryfa. Oferta turystyczna, piękne plaże i lokalna atmosfera przyciągają tu co roku tysiące turystów. Cristimar to kompleks położony w jednej z najlepszych dzielnic Los Cristianos, tuż nad brzegiem morza i zaledwie kilka metrów od jednej z plaż. Jest to jedna z najbardziej poszukiwanych lokalizacji na Teneryfie. W pobliżu znajdują się miejsca rozrywki i restauracje, piękne plaże, autostrada Sur oraz lotnisko Reina Sofía. Kompleks położony jest w wyjątkowej lokalizacji.

Apartamenty w Los Cristianos cieszą się ogromnym popytem i wysokim wskaźnikiem obłożenia. Nie jest łatwo znaleźć nieruchomości na sprzedaż.

Gracia Real Estate zajmuje się sprzedażą tej nieruchomości w kompleksie Cristimar, przystosowanej dla osób niepełnosprawnych, jak widać na zdjęciach, z bardzo zadbanym ogrodem i dużym basenem wspólnym.

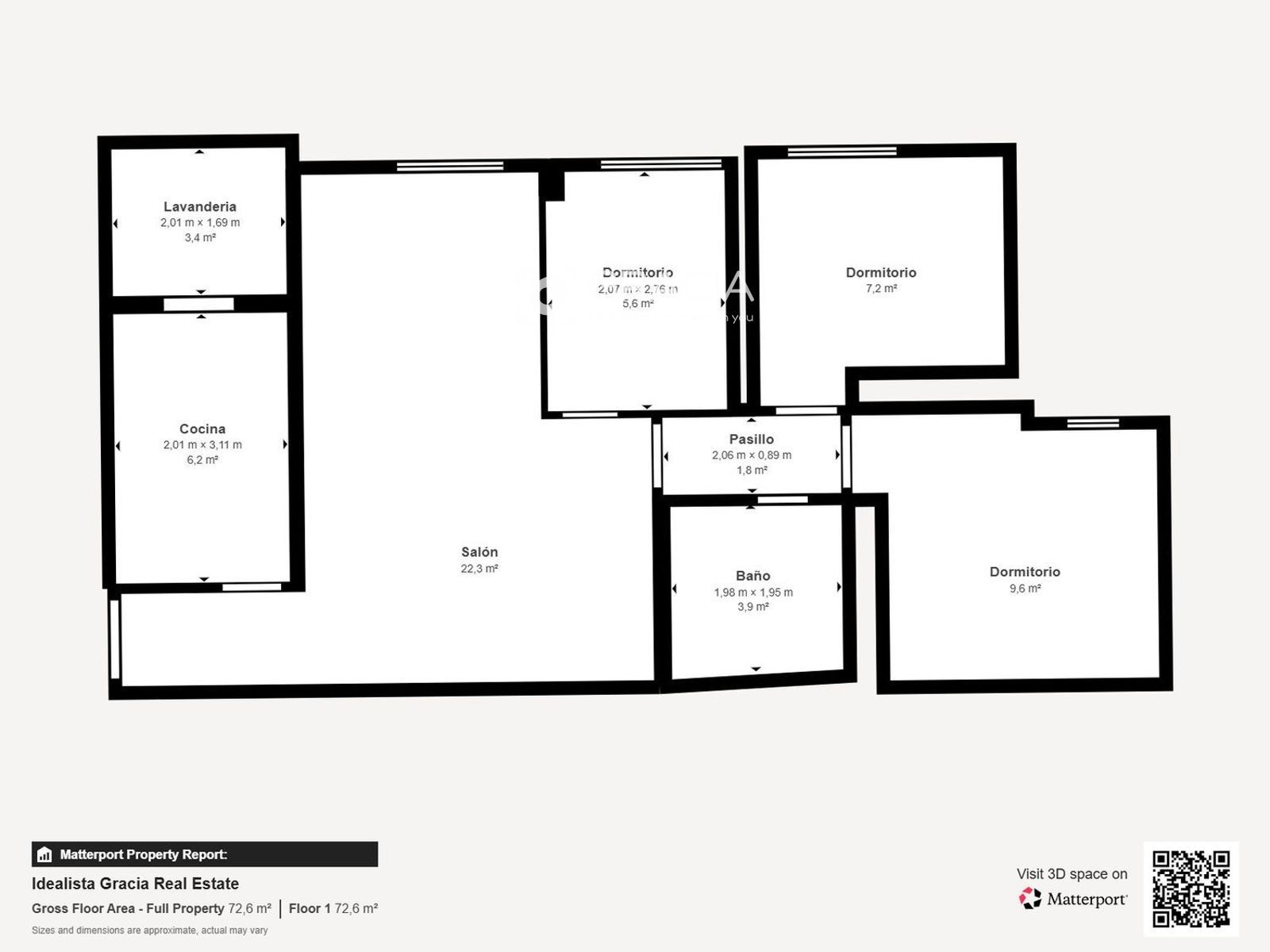
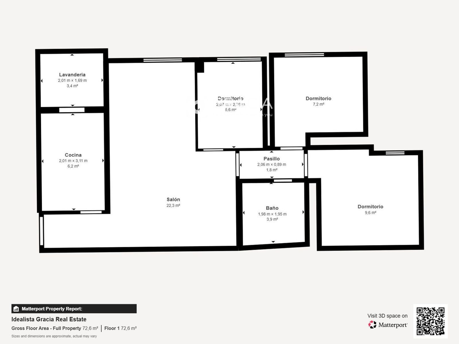
Apartament jest w bardzo dobrym stanie, gotowy do zamieszkania, a jego rozkład jest następujący:

Oddzielna, bardzo przestronna i w pełni wyposażona kuchnia z pralnią, przestronna, funkcjonalna i z dużym, jasnym oknem.

Salon z jadalnią, składający się z dwóch przestronnych części, z dostępem do prywatnego tarasu. Salon jest bardzo dobrze rozplanowany i ma dużo światła.

Łazienka z brodzikiem na poziomie podłogi, całkowicie odnowiona w 2026 roku.

Trzy sypialnie, wszystkie z szafami wnękowymi i oknami, są zewnętrzne, jasne i ciche. Dwie z nich wyposażone są w łóżka małżeńskie, a trzecia w łóżko wysuwane.

Mieszkanie jest świeżo pomalowane i w bardzo dobrym stanie. W cenie zawarte jest miejsce parkingowe oraz przestronna komórka lokatorska w tym samym kompleksie, z dostępem windą.

Kompleks posiada duży basen z strefą relaksu, jest zagospodarowany i bardzo zadbany.

Opłaty wspólnotowe: 97 €/miesiąc

Przetłumaczono z DeepL.com (wersja darmowa)

Cechy
Cena Sprzedaży 419 900 €
Cena/m² 4 883
Gastos de comunidad 97 €
Rok budowy 1982
Powierzchnia zabudowana 86 m2
Sypialnie 3
Łazienki 1
Umeblowane
Wyposażona kuchnia
Komórka
Taras
Stan
Winda
Basen wspólny
Garaż
Strefy wspólne
Certyfikat energetyczny (G) VER
Światło
Woda
Dostęp dla niepełnosprawnych
Załączniki
  • Wirtualna wizyta

    Skale efektywności


    -
    -

    Skontaktuj się z nami

    Jeśli chcesz uzyskać więcej informacji o tej nieruchomości, proszę wypełnij formularz.

     Tak, przeczytałem i/lub akceptuję Warunki użytkowania oraz Politykę prywatności
    Podobne nieruchomości:
     
    379 900 €
    Ref. 1402  86 m2  2  1
    Mieszkanie na sprzedaż w Adeje, z 86 m2, 2 pokoje І 1 łazienki, Basen, Garaż, Komórka І Winda.
     
    339 000 €
    Ref. 1380  85 m2  2  1
    Mieszkanie na sprzedaż w Callao Salvaje, z 85 m2, 2 pokoje І 1 łazienki